施俊 - 主任设计师
从业经验:15 年 职称:主任设计师
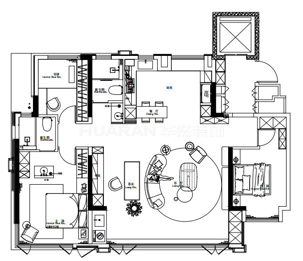
本案例为现代简约风格家装设计,以米白、深棕为主色调,营造出雅致舒适的氛围。公共区域采用开放式布局,客厅深棕与绿色沙发搭配复古吊灯,简约大气。餐厨区与客厅相连,深色餐桌椅与橱柜结合,精致花艺点缀其间,尽显质感。卧室延续整体风格,浅棕床具与带有花纹的床品结合,充足收纳空间满足日常需求。全屋通过简洁线条、深色木质元素与合理空间规划,打造出兼具品质与舒适的居住体验。











李庆华
主任设计师
陈瑞
主任设计师
郭丽丽
首席设计师
置顶—— 知精准报价 避装修深坑 ——
平均七年以上的设计经验资深设计师为您服务